MENU
<< Haalbaarheidsstudies
Project
Haalbaarheidsstudie pastorie Deurne
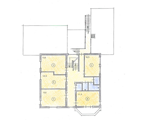
Schetsplan begane grond
Schetsplan eerste verdieping
Schetsplan tweede verdieping
1 - 4
<
>
Werkzaamheden
conceptontwikkeling, vooroverleg gemeente en brandweer, kostenraming
Omschrijving
De opdrachtgever vroeg om te onderzoeken of een leegstaande pastorie verbouwd zou kunnen worden tot een residentiƫle locatie voor de huisvesting van 10 jongeren met 24 uurs begeleiding. Door de zolderetage voor bewoning geschikt te maken en een deel van de berging bij de woonruimte te betrekken kon het programma net gerealiseerd worden. Het onderzoek betrof naast plattegrondstudie ook een bouwkundige opname van het pand en onderzoeken naar geluid, brandveiligheidaspecten en bestemmingsplanprocedures. Er is een programma van uit te voeren werkzaamheden opgesteld en aan de hand hiervan een begroting van de bouwkosten. De opdrachtgever besloot op basis van onze studie het pand aan te kopen en te verbouwen.